Электрический котёл Zota Lux-X 12 кВт идеально подходит для небольших жилых помещений, включает функции самодиагностики, управление по температуре и возможности дистанционного управления.
Ключевые особенности Zota Lux X 12
- мощность 12 кВт;
- 6 ступеней мощности;
- информативный графический дисплей;
- система самодиагностики неисправностей с выводом кодов ошибок на экран и записью во внутреннюю память контроллера;
- управление по температуре теплоносителя и температуре воздуха;
- погодозависимое регулирование;
- управление циркуляционным насосом;
- управление приводом трехходового переключающего клапана ZOTA BPV, Fugas для организации работы контура ГВС;
- возможность самостоятельного обновления программного обеспечения;
- возможность подключения внешнего комнатного термостата (по "сухому контакту")
- дистанционное управление котлом со смартфона или ПК при помощи GSM / GPRS / Wi-Fi или LAN модуля (опционально);
- дистанционное управление котлом по цифровой шине с использованием протокола OpenTherm;
- возможность подключения внешнего ИБП для питания цепей контроллера, насоса и клапана ZOTA BPV, Fugas.
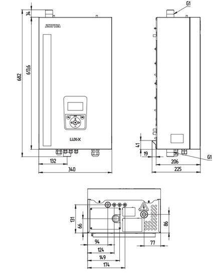
Конструкция электрокотла Зота Lux-X от 4,5 до 24 кВт

Условия эксплуатации
- Рабочая температура окружающей среды от +1°С до +35°С;
- Относительная влажность до 80% при температуре +25°С;
- Окружающая среда невзрывоопасная, не содержащая агрессивных газов и паров, разрушающих металлы и изоляцию, не насыщенная токопроводящей пылью и водяными парами;
- Температура транспортировки и хранения от -50°С до +45°С с относительной влажностью не более 80%;
- Общая жёсткость теплоносителя не более 2 мг.экв/дм3
- Кислотность pH теплоносителя в пределах 6,5-8,5 мг/л
- Рабочее положение в пространстве – вертикальное;
- Высота над уровнем моря не более 2000 м.
Комплектация отопительного котла Zota Lux X 12 кВт
- электрический котёл 12 кВт
- предохранитель 2А / 250В 5х20 - 2 шт.
- датчик температуры воздуха
- уплотнение кольцевое силиконовое G2
- кронштейн настенный
- отвёртка
- шуруп 6х50 с пластиковым дюбелем - 2 шт.
- паспорт и инструкция по эксплуатации электрокотла
- инструкция по эксплуатации пульта управления ZOTA X-Line 100E
Требования к месту установки
Для обеспечения надлежащих условий эксплуатации котла помещение котельной может быть оборудовано приточной и вытяжной вентиляцией с естественным или принудительным притоком свежего воздуха. При монтаже котла необходимо выдерживать минимальные расстояния до стен, пола и потолка, указанных на иллюстрации. Расстояния необходимо соблюдать для удобства эксплуатации и сервисного обслуживания. |
|
Документация
- Паспорт на котлы электрические Zota Lux-X (открыть PDF-файл)
- Сертификат соответствия до 2028 года (открыть PDF-файл)
Технические характеристики
| Производитель | Zota |
| Серия | Lux-X |
| Артикул | ZL3468421012 |
| Тип | котёл отопления |
| Вид по используемому топливу | электрический |
| Монтаж | настенный вертикальный |
| Количество контуров | 1 (отопление) |
| Площадь отапливаемого помещения | 120 м2 |
| Номинальная потребляемая мощность | 12 кВт |
| Значение потребляемой мощности по ступеням | 2-4-6-8-10-12 кВт |
| Максимальный КПД | 99% |
| Выбор ступеней мощности | автоматическое |
| Объём теплоносителя в котле | 4 л |
| Вид сети | трёхфазная |
| Номинальное напряжение питания | 380 ±10% |
| Частота сети | 50 Гц |
| Рабочая среда | вода или растворы гликолей (до 50%) |
| Давление теплоносителя в системе отопления | не более 3 бар |
| Диапазон регулировки температуры теплоносителя | от +20°С до +85°С |
| Диапазон регулировки температуры воздуха в помещении | от +2°С до +35°С |
| Максимальная теплопроизводительность при нагреве теплоносителя на 40°С | 0,26 м3/час |
| Сечение подводящего кабеля (медь) | 4х4 мм2 |
| Кислотность pH | 6,5-8,5 мг/л |
| Общая жёсткость теплоносителя | не более 2 мг.экв/дм3 |
| Температура в помещении | от +1°С до +35°С |
| Относительная влажность окружающей среды | не более 80% |
| Степень пылевлагозащиты | IР20 |
| Класс защиты от поражения электрическим током | I |
| Присоедининительный размер системы отопления | 1" |
| Высота | 682 мм |
| Ширина | 340 мм |
| Глубина | 225 мм |
| Упаковочные размеры (ШxВxГ) | 397x722x277 мм |
| Вес | 16 кг |
| Срок службы | 6 лет |
| Официальная гарантия производителя | 2 года* |
| Страна-родина бренда | Россия |
| Страна производства | Россия |
* - Гарантийный срок на электрокотел составляет 2 года при выполнении условий «Расширенная гарантия».








